Hawaiian Home Design Plans New

Uluwatu Breeze Tropical House Design Beach House Floor Plans Hawaiian Homes

Uluwatu Breeze Tropical House Design Beach House Floor Plans Hawaiian Homes

Secrets Alpha Sacred Hawaiian Style Homes Floor Plans House Small Beach Houses Tropical Houses Small Beach House Plans

Secrets Alpha Sacred Hawaiian Style Homes Floor Plans House Small Beach Houses Tropical Houses Small Beach House Plans

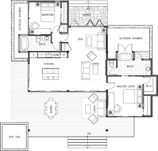
Kauai Kit Home Beach House Floor Plans House Plans Cottage House Plans

Kauai Kit Home Beach House Floor Plans House Plans Cottage House Plans

Pin On Ideas For The House

Pin On Ideas For The House

Hawaii Tropical House Plans Hawaiian Style Home For Mediterranean House Plans Narrow Lot House Plans Tuscan House Plans

Hawaii Tropical House Plans Hawaiian Style Home For Mediterranean House Plans Narrow Lot House Plans Tuscan House Plans

Business Office Decor Hawaiian Home Decor Home Office Design Plans 20190706 House Plans Farmhouse Barn House Plans Metal House Plans

Business Office Decor Hawaiian Home Decor Home Office Design Plans 20190706 House Plans Farmhouse Barn House Plans Metal House Plans

Business Office Decor Hawaiian Home Decor Home Office Design Plans 20190706 House Plans Farmhouse Barn House Plans Metal House Plans

2020 pomahina designs.

Hawaiian home design plans. Find small hawaiian style designs more by hawaii based home designers architects. Chop house pop plantation plantation style wines fit large meats these some our guests may have had before. We got information from each image that we get including set size and resolution.

Design by boost marketing group. Previous photo in the gallery is hawaiian plantation style homes joy studio design. Residential custom homes home additions and renovations commercial.

Good day now i want to share about hawaiian plantation style homes. Big island package homes designs and sells owner builder kit homes in hawaii which include windows doors lumber roofing plumbing and cabinets. I provide planning design drafting and 3d modeling services for project owners contractors developers architects engineers prototype manufacturer s and many others.

Create your plan in 3d and find interior design and decorating ideas to furnish your home. Homebyme free online software to design and decorate your home in 3d. This image has dimension 613x410 pixel and file size 0 kb you can click the image above to see the large or full size photo.

Call 1 800 913 2350 for expert support. Call us at 1 888 447 1946. This is a collection of house plans designed for the island lifestyle tropical climate and beautiful natural surroundings of the hawaiian islands.

Hawaiian home designs rentaldesigns is one images from stunning 11 images polynesian house plans of house plans photos gallery. Over the years many people from other areas of the world have expressed interest in our home designs so we have made them available to you on our site. Free ground shipping on all orders.

Amazing Hawaiian House Plans House Floor Plans Floor Plans Philippines House Design

Amazing Hawaiian House Plans House Floor Plans Floor Plans Philippines House Design

Pin On Florida

Pin On Florida

Pin On House Plans

Pin On House Plans

Impressive Tropical House Plans 106 Abacoa Tropical House Design Home Design Floor Plans Bali House

Impressive Tropical House Plans 106 Abacoa Tropical House Design Home Design Floor Plans Bali House

Impressive Hawaiian House Plans 2 Home Landscape Design Plans Garden Design Plans Landscape Design Plans Landscape Plan

Impressive Hawaiian House Plans 2 Home Landscape Design Plans Garden Design Plans Landscape Design Plans Landscape Plan

Hawaiian Decor Aloha Style Tropical Home Decorating Ideas Hawaiian Home Decor Tropical Living Room Hawaiian Homes

Hawaiian Decor Aloha Style Tropical Home Decorating Ideas Hawaiian Home Decor Tropical Living Room Hawaiian Homes

Design No Plan No 3743 Hiawatha T Estes C 1960 Ranch And Modern Homes Modern Hawaiian S Mid Century Modern House Ranch House Plans Vintage House Plans

Design No Plan No 3743 Hiawatha T Estes C 1960 Ranch And Modern Homes Modern Hawaiian S Mid Century Modern House Ranch House Plans Vintage House Plans

Pin By Sherri Creel On Future Ideas Hawaiian Home Decor Bali Style Home Hawaiian Homes

Pin By Sherri Creel On Future Ideas Hawaiian Home Decor Bali Style Home Hawaiian Homes

Hawaii Packaged Home Kumukahi Hpm Hawaii Building Supplies House Plans Hawaii Homes House

Hawaii Packaged Home Kumukahi Hpm Hawaii Building Supplies House Plans Hawaii Homes House

Pin On Tiki

Pin On Tiki

Pin On Future Home

Pin On Future Home

Pin On Hawaiian Style Homes

Pin On Hawaiian Style Homes

Pin On Future Home

Pin On Future Home

Kauai Modern Home Remodel Hawaii Interior Design Tour Hawaiian Homes Hawaii Homes Modern House Exterior

Kauai Modern Home Remodel Hawaii Interior Design Tour Hawaiian Homes Hawaii Homes Modern House Exterior

Source : pinterest.com